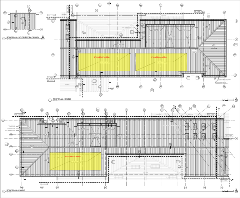
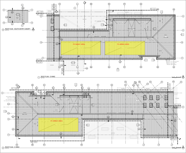
Solar array proposed for new high school in Burien, Wash.
The new Highline High School in Burien, Wash., could be powered by solar panels next year.
Installation of the project would occur next year if the project meets its January 2022 fundraising deadline, reports the South Seattle Emerald.
Once complete, the 100-kilowatt solar array would not only produce clean electricity but also provide experiential, STEM-based learning opportunities for students, who could monitor the system’s flow of energy in real time.
The solar array is expected to cost roughly $250,000 at the outset. It is projected to reduce energy costs by more than $11,000 in its first year and $340,000 over 30 years.
Features of the new high school include a 1,500-seat gym, career and technical education classrooms, science laboratories, fine arts among other classrooms. It will also house a 400-seat theatre and a commons area that links the new north and south wings.
The 230,000-square-foot school is set to open in September.
Bassetti Architects deisgned the school and Skanska USA was the construction manager.
